Listed by The Jason White Team of Century 21 Legacy GP
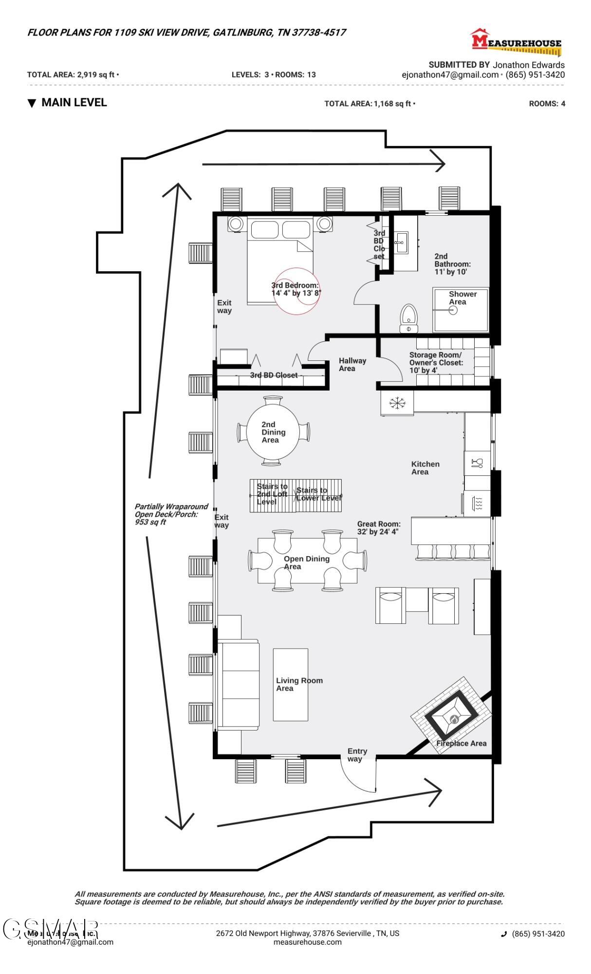
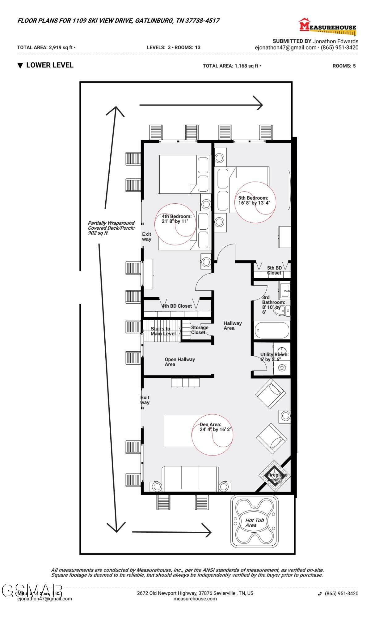
Located just minutes from downtown Gatlinburg, the National Park, and Ober Mountain, this 5 BD / 3 BA A-frame chalet is situated on a corner lot with big views and over 2,900 square feet of rentable space. With strong income history, and clear potential for optimization, the layout is purpose-built for short-term rental efficiency. The main level features a vaulted great room with a fireplace, an open-concept kitchen with granite countertops, and two dining areas designed to comfortably accommodate group stays. The kitchen has been thoughtfully maintained and updated over time, including a new range installed in 2021, a new dishwasher added in 2023, and a new refrigerator in 2025. A private bedroom with an adjacent full bath completes the main level. Upstairs, the primary suite and a second bedroom are joined by a loft-style sitting area that can easily be staged as an additional hangout or overflow sleeping space, increasing flexibility for larger groups. The lower level offers a second den with its own fireplace, two additional bedrooms, a full bath, and generous storage space-ideal for adding a game room, bunk area, or creating a more defined guest suite layout. Outside, two partially wraparound decks extend the living space and enhance seasonal rental appeal, anchored by a hot tub installed in 2020 that remains a consistent guest favorite. From a maintenance standpoint, the property has been responsibly cared for, with the HVAC system checked annually and both fireplaces serviced on a regular annual schedule. Enjoy city water, sewer, trash pick and winter street clearing along with easy access to the neighborhood pools and tennis and pickle-ball courts. Positioned in one of the Smokies' most desirable short-term rental zones, wth easy access to Gatlinburg and the Nation al Park, this chalet presents a strategic opportunity for investors!

Listing Tools

Property Details of 1109 Ski View Drive

Map Location

 "Based on information submitted to Great Smoky Mountains MLS as of February 17, 2026 6:21 PM EST . All data is deemed reliable but is not guaranteed accurate by the MLS. All information should be independently reviewed and verified for accuracy. IDX information is provided exclusively for consumers’ personal, noncommercial use and may not be used for any purpose other than to identify prospective properties consumers may be interested in purchasing."

 
 

 

 

Hi there! How can we help you?

Contact us using the form below or give us a call.

Send Us A Message:

I agree to be contacted by The Real Estate Firm via call, email, and text for real estate services. To opt out, you can reply 'stop' at any time or reply 'help' for assistance. You can also click the unsubscribe link in the emails. Consent is not a condition of purchase. Message and data rates may apply. Message frequency may vary. Privacy Policy.

Do not fill in this field:

This site is protected by reCAPTCHA and the Google Privacy Policy and Terms of Service apply.

Hi there! How can we help you?

Contact us using the form below or give us a call.

Send Us A Message:

Do not fill in this field:

This site is protected by reCAPTCHA and the Google Privacy Policy and Terms of Service apply.

Hi there! How can we help you?

Contact us using the form below or give us a call.

Send Us A Message:

Do not fill in this field:

This site is protected by reCAPTCHA and the Google Privacy Policy and Terms of Service apply.

Do not fill in this field:

This site is protected by reCAPTCHA and the Google Privacy Policy and Terms of Service apply.

Do not fill in this field:

This site is protected by reCAPTCHA and the Google Privacy Policy and Terms of Service apply.

Do not fill in this field:

This site is protected by reCAPTCHA and the Google Privacy Policy and Terms of Service apply.

$

Do not fill in this field:

This site is protected by reCAPTCHA and the Google Privacy Policy and Terms of Service apply.