Listed by Madeline Blom of Real Broker
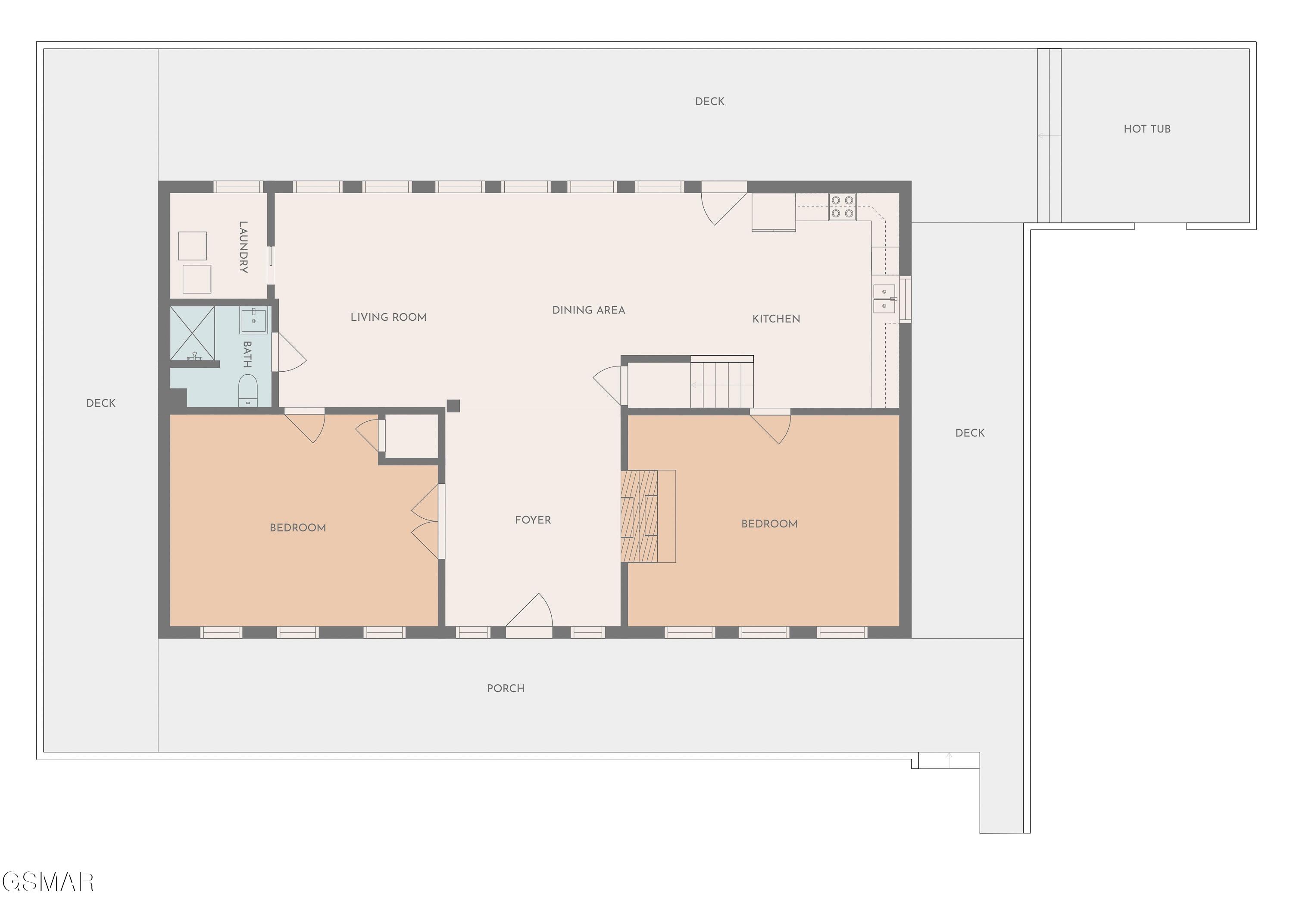
Welcome to A Walk in the Clouds, a breathtaking mountain-view cabin in Sky Harbor that delivers the perfect blend of luxury, space, and proven short-term rental income grossing $123,235 in 2025 with $35,044.61 already on the books for 2026. This home also holds an active STR permit, adding even more confidence for incoming ownership. Officially a 3BR/3BA, this home offers two bonus rooms that function as additional sleeping areas, giving you the flexibility of a true 5-bedroom layout featuring 3 King beds, 2 Queen beds, 2 bunk beds, and 2 sleeper sofas, comfortably sleeping up to 20 (and grandfathered in to sleep 20, a major advantage in today's STR market). Guests can't stop raving about it, earning Airbnb ''Guest Favorite'' status with 108 reviews and an impressive 4.87-star average. Inside, you'll find a brand new custom kitchen with granite countertops and stainless steel appliances, plus an elevated coffee bar that feels like a boutique caf, flowing into a spacious living room with a 65'' HDTV and cozy sectional. For added comfort and style, two of the bathrooms have been remodeled with a fresh, modern feel, creating a more elevated guest experience. The fun continues upstairs with a game room loaded with a pool table and arcade games, while outside, two full-length wraparound decks showcase the extraordinary Smoky Mountain and Pigeon Forge views, complete with swing chairs, a hot tub, and a fire pit for unforgettable nights under the stars. As an exciting value-add opportunity, a new owner could extend the deck from the hot tub area and create a true ''wow'' amenity, such as an observatory dome for stargazing or a barrel sauna taking the guest experience (and revenue potential) to the next level. Centrally located minutes to Pigeon Forge, Gatlinburg, and Dollywood, this cabin is as convenient as it is stunning making it a rare opportunity to own a high capacity retreat with immediate revenue and momentum.

Listing Tools

Property Details of 1949 Orchard Drive

Map Location

 "Based on information submitted to Great Smoky Mountains MLS as of February 18, 2026 11:53 PM EST . All data is deemed reliable but is not guaranteed accurate by the MLS. All information should be independently reviewed and verified for accuracy. IDX information is provided exclusively for consumers’ personal, noncommercial use and may not be used for any purpose other than to identify prospective properties consumers may be interested in purchasing."

 
 

 

 

Hi there! How can we help you?

Contact us using the form below or give us a call.

Send Us A Message:

I agree to be contacted by The Real Estate Firm via call, email, and text for real estate services. To opt out, you can reply 'stop' at any time or reply 'help' for assistance. You can also click the unsubscribe link in the emails. Consent is not a condition of purchase. Message and data rates may apply. Message frequency may vary. Privacy Policy.

Do not fill in this field:

This site is protected by reCAPTCHA and the Google Privacy Policy and Terms of Service apply.

Hi there! How can we help you?

Contact us using the form below or give us a call.

Send Us A Message:

Do not fill in this field:

This site is protected by reCAPTCHA and the Google Privacy Policy and Terms of Service apply.

Hi there! How can we help you?

Contact us using the form below or give us a call.

Send Us A Message:

Do not fill in this field:

This site is protected by reCAPTCHA and the Google Privacy Policy and Terms of Service apply.

Do not fill in this field:

This site is protected by reCAPTCHA and the Google Privacy Policy and Terms of Service apply.

Do not fill in this field:

This site is protected by reCAPTCHA and the Google Privacy Policy and Terms of Service apply.

Do not fill in this field:

This site is protected by reCAPTCHA and the Google Privacy Policy and Terms of Service apply.

$

Do not fill in this field:

This site is protected by reCAPTCHA and the Google Privacy Policy and Terms of Service apply.