Listed by Jerry Sandifer of Exit Tennessee Realty Pros,LLC
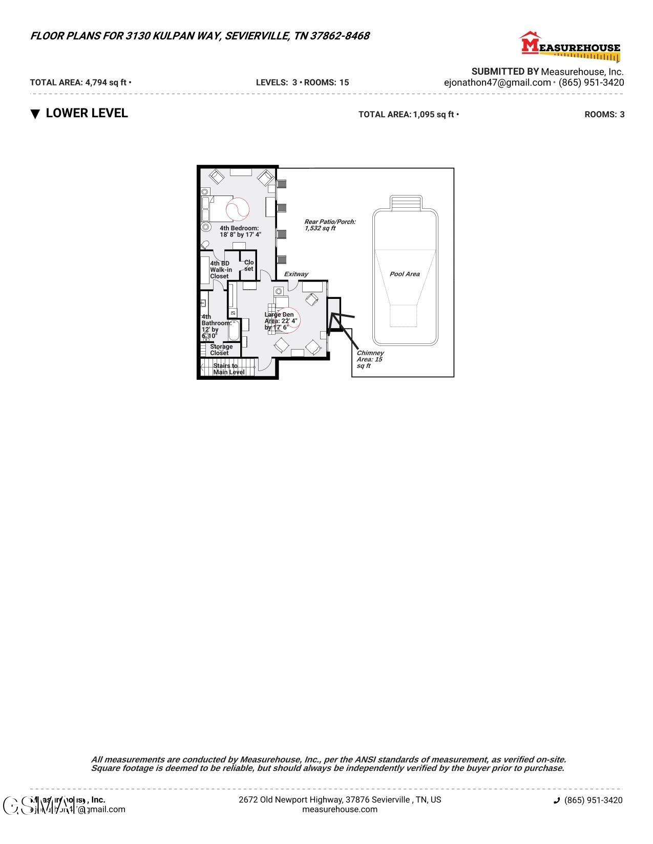
Discover the perfect blend of luxury and serenity with this charming country estate home, now offering an incredible opportunity! The owners are including the adjacent lot of 0.83 acres with the purchase, bringing the total land to 2.11 acres--plenty of room for additional outdoor amenities to suit your lifestyle. Nestled on 1.28 acres of scenic beauty, this almost 5,000-square-foot home offers spectacular mountain and valley views. Originally designed as a bed & breakfast, the versatile layout--with four spacious suites--lends itself ideally to use as a B&B, short-term rental, inn, or multi-generational living. Extensive upgrades across all three floors ensure a move-in-ready experience. Enter through a spacious tiled foyer with a striking circular staircase featuring custom wood steps and railings. The gourmet kitchen includes high-end appliances, custom wood cabinetry, and wood flooring that flows into the breakfast room, formal dining room, and living room. The main level offers two fireplaces--one in the expansive living room and one in the primary suite--for added warmth and ambiance. All fireplaces are propane gas operated. The upper level features two generously sized bedrooms, each with oversized bathrooms and sitting areas; one includes a third fireplace. The fully finished lower level provides a large bedroom with in-suite bathroom, a den with full wet bar, and flexible space for recreation, media, or a home office. Additional highlights include multiple decks, an open patio, a whole-home water filtration system, five air-conditioning units, and five zoned climate controls for personalized comfort. A propane operated generator insures that the home never loses power. Extensive furnishings and antiques are negotiable with the sale. This rare estate combines elegant living with tranquil surroundings and convenient access to nearby amenities. Schedule your private tour today to explore the possibilities! All information is deemed to be correct but not guaranteed. The Buyer should verify all information that is important to them before making an offer

Listing Tools

Property Details of 3130 Kulpan Way

Map Location

 "Based on information submitted to Great Smoky Mountains MLS as of April 13, 2026 4:21 AM EDT . All data is deemed reliable but is not guaranteed accurate by the MLS. All information should be independently reviewed and verified for accuracy. IDX information is provided exclusively for consumers’ personal, noncommercial use and may not be used for any purpose other than to identify prospective properties consumers may be interested in purchasing."

 
 

 

 

Hi there! How can we help you?

Contact us using the form below or give us a call.

Send Us A Message:

I agree to be contacted by The Real Estate Firm via call, email, and text for real estate services. To opt out, you can reply 'stop' at any time or reply 'help' for assistance. You can also click the unsubscribe link in the emails. Consent is not a condition of purchase. Message and data rates may apply. Message frequency may vary. Privacy Policy.

Do not fill in this field:

This site is protected by reCAPTCHA and the Google Privacy Policy and Terms of Service apply.

Hi there! How can we help you?

Contact us using the form below or give us a call.

Send Us A Message:

Do not fill in this field:

This site is protected by reCAPTCHA and the Google Privacy Policy and Terms of Service apply.

Hi there! How can we help you?

Contact us using the form below or give us a call.

Send Us A Message:

Do not fill in this field:

This site is protected by reCAPTCHA and the Google Privacy Policy and Terms of Service apply.

Do not fill in this field:

This site is protected by reCAPTCHA and the Google Privacy Policy and Terms of Service apply.

Do not fill in this field:

This site is protected by reCAPTCHA and the Google Privacy Policy and Terms of Service apply.

Do not fill in this field:

This site is protected by reCAPTCHA and the Google Privacy Policy and Terms of Service apply.

$

Do not fill in this field:

This site is protected by reCAPTCHA and the Google Privacy Policy and Terms of Service apply.