Listed by Mary Beth Whitaker of MG Rise Real Estate Group
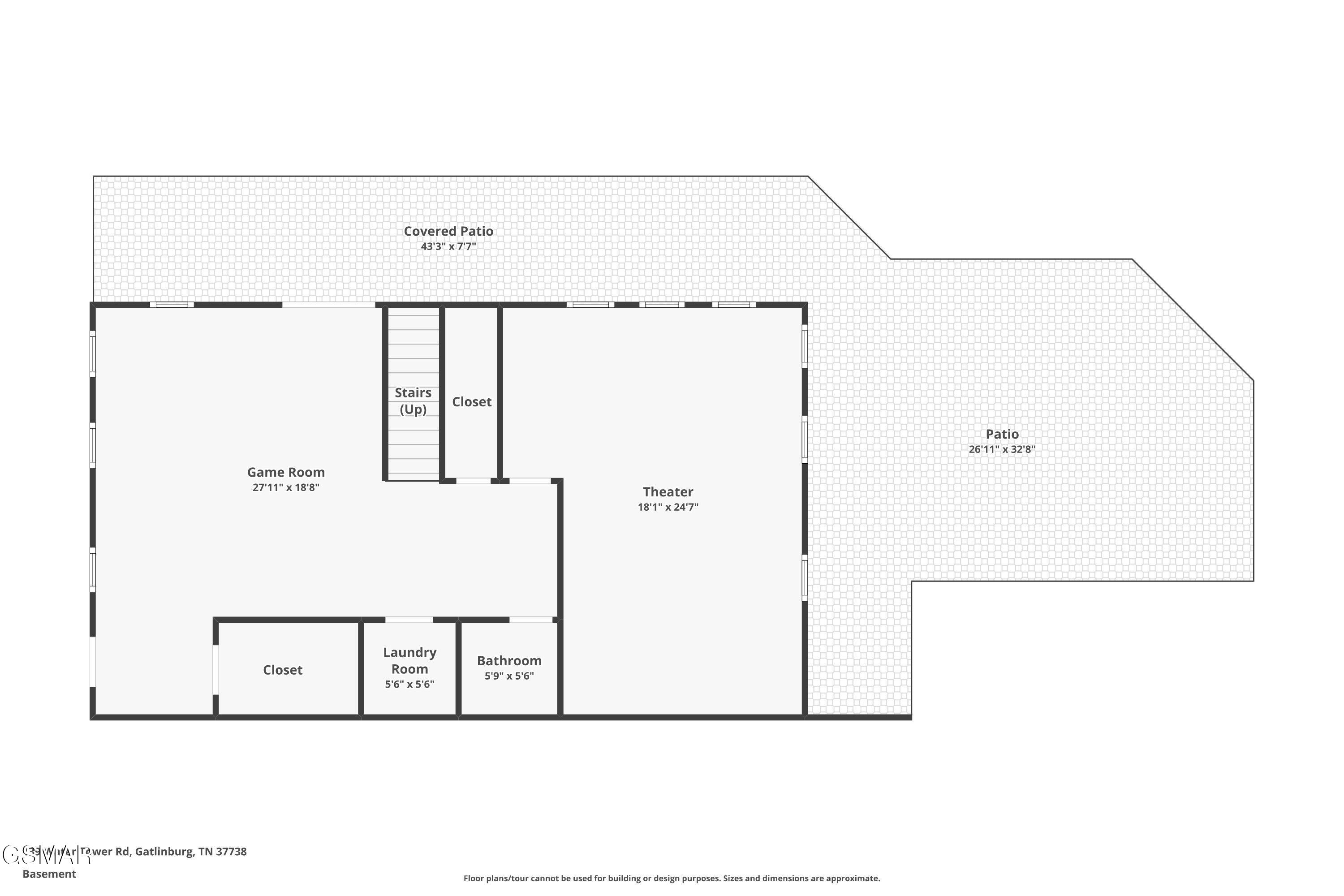
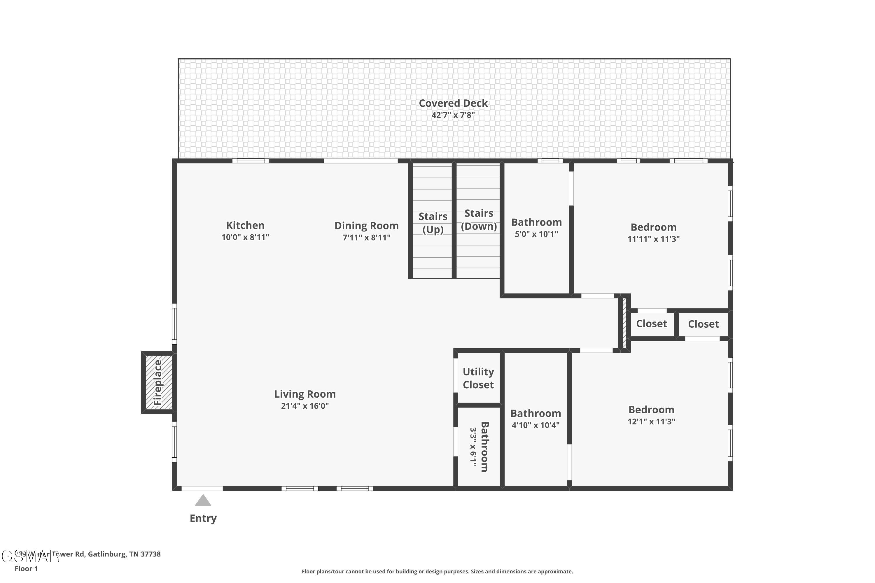
Proven Performer with six-figure rental history year after year and incredible future bookings already in place. Luxury 4BR/4BA cabin with 2 half baths, all bedrooms featuring en suites, three levels, and stunning views of downtown Gatlinburg. This modern rustic retreat is sold fully furnished and turnkey with exceptional rental performance--2024 income of $207,299, 2025 income of $192,759, and over $97,000 in bookings already secured for 2026. Highlights include an open floor plan, tongue-and-groove walls and ceilings, luxury vinyl plank flooring throughout, electric fireplace, and upscale kitchen with quartz countertops and stainless appliances. Main level offers a queen suite with deck access and a bunk room sleeping six. Upper level features two king suites with spa-style baths and private deck access. Lower level includes a movie theater, game room, and access to covered deck with hot tub, firepit seating, and outdoor 16 ft swim spa. Easy access right off East Parkway with no steep roads, ample parking, and walkable to downtown Gatlinburg. Ideal short-term rental, vacation home, or second home. Sleeps 12. Check out our Rental Link and reviews: https://www.airbnb.com/rooms/867557912464038531?viralityEntryPoint=1&s=76

Listing Tools

Property Details of 139 Water Tower Road

Map Location

 "Based on information submitted to Great Smoky Mountains MLS as of March 9, 2026 4:52 PM EDT . All data is deemed reliable but is not guaranteed accurate by the MLS. All information should be independently reviewed and verified for accuracy. IDX information is provided exclusively for consumers’ personal, noncommercial use and may not be used for any purpose other than to identify prospective properties consumers may be interested in purchasing."

 
 

 

 

Hi there! How can we help you?

Contact us using the form below or give us a call.

Send Us A Message:

I agree to be contacted by The Real Estate Firm via call, email, and text for real estate services. To opt out, you can reply 'stop' at any time or reply 'help' for assistance. You can also click the unsubscribe link in the emails. Consent is not a condition of purchase. Message and data rates may apply. Message frequency may vary. Privacy Policy.

Do not fill in this field:

This site is protected by reCAPTCHA and the Google Privacy Policy and Terms of Service apply.

Hi there! How can we help you?

Contact us using the form below or give us a call.

Send Us A Message:

Do not fill in this field:

This site is protected by reCAPTCHA and the Google Privacy Policy and Terms of Service apply.

Hi there! How can we help you?

Contact us using the form below or give us a call.

Send Us A Message:

Do not fill in this field:

This site is protected by reCAPTCHA and the Google Privacy Policy and Terms of Service apply.

Do not fill in this field:

This site is protected by reCAPTCHA and the Google Privacy Policy and Terms of Service apply.

Do not fill in this field:

This site is protected by reCAPTCHA and the Google Privacy Policy and Terms of Service apply.

Do not fill in this field:

This site is protected by reCAPTCHA and the Google Privacy Policy and Terms of Service apply.

$

Do not fill in this field:

This site is protected by reCAPTCHA and the Google Privacy Policy and Terms of Service apply.