Listed by The Jason White Team of Century 21 Legacy GP
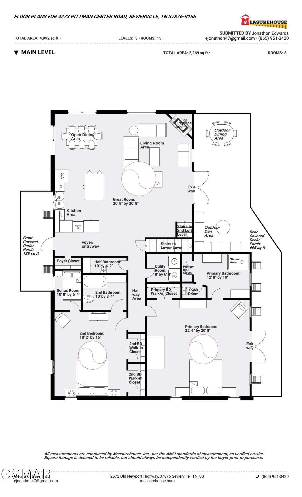
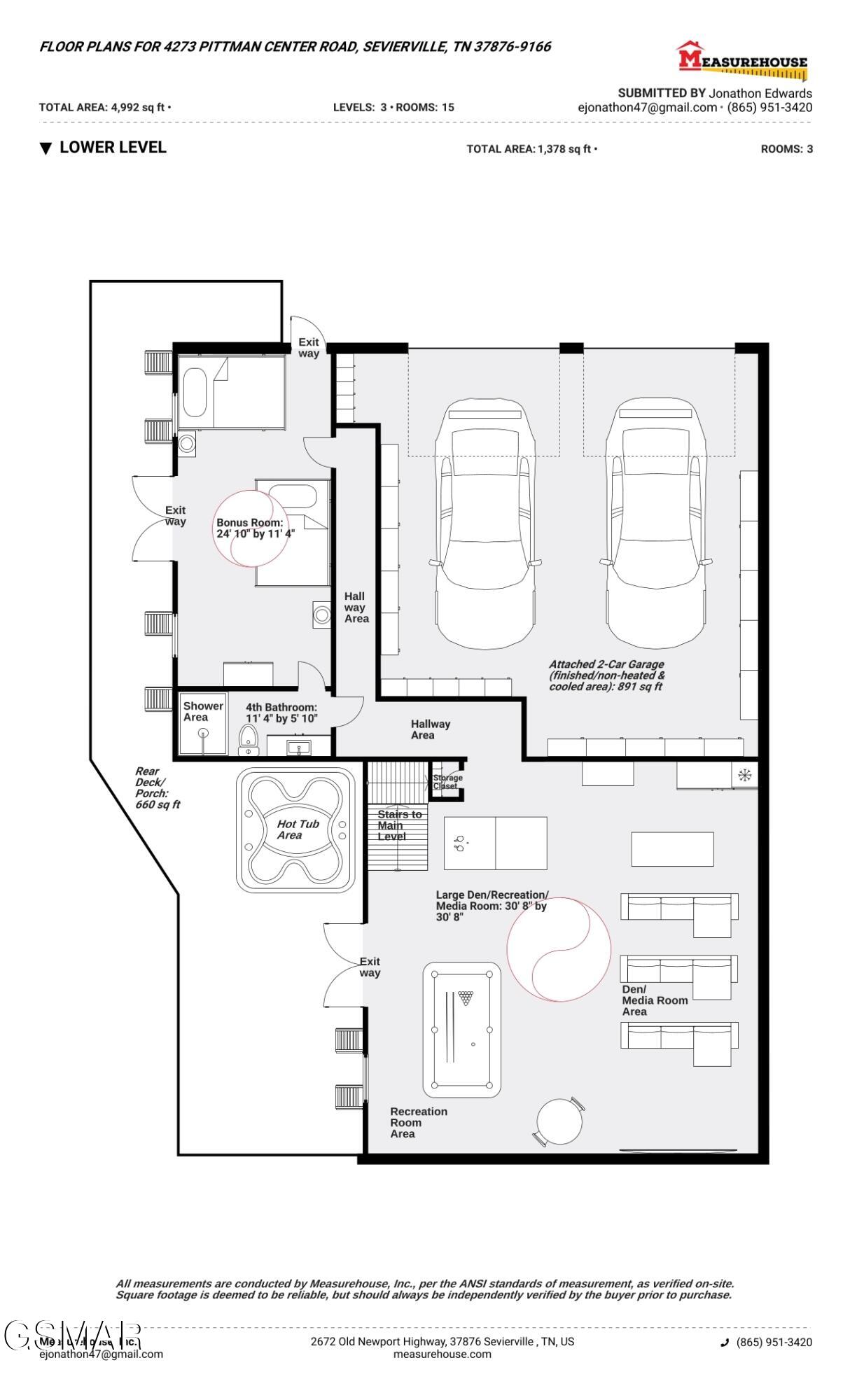
This riverfront chalet is more than just a home, it's an experience. Nestled along 452' of frontage on the Middle Prong of the Little Pigeon River, this 4,900+ sq. ft. retreat offers a rare blend of location, space, and natural beauty. Three levels of decks provide ever-changing views of the river and surrounding Smokies, while a sprawling pavilion with an outdoor wood-burning fireplace invites you to gather with family and friends beside the water. Inside, the main level welcomes you with a soaring great room, complete with a mountain stone fireplace, open dining area, and island kitchen, perfect for entertaining or quiet evenings by the fire. Two expansive suite-style bedrooms anchor this floor, each with private baths and ample closet space, along with a convenient half bath and utility room. Upstairs, a loft den, a third bedroom, bonus room, and full bath create a flexible space for guests or a private retreat. The lower level expands into a media and recreation room, an additional bonus room, a full bath, and an oversized two-car garage. Every corner of this chalet feels purposeful and well-appointed, with room for both relaxation and play. Tucked in a serene setting, yet only minutes from downtown Gatlinburg, Pigeon Forge, Dollywood, and the National Park, this property offers unmatched access to the best of the Smokies. You're just a short distance to hiking and fishing at the Greenbrier entrance of the National Park. This river was designated as the cleanest waterway in the state of TN, with pristine quality, flowing right out of the Great Smoky Mountain wilderness. Whether you envision it as a private mountain escape, or a high-performing rental, this riverfront haven is a rare opportunity you won't want to miss.

Listing Tools

Property Details of 4273 Pittman Center Road

Map Location

 "Based on information submitted to Great Smoky Mountains MLS as of February 13, 2026 10:51 PM EST . All data is deemed reliable but is not guaranteed accurate by the MLS. All information should be independently reviewed and verified for accuracy. IDX information is provided exclusively for consumers’ personal, noncommercial use and may not be used for any purpose other than to identify prospective properties consumers may be interested in purchasing."

 
 

 

 

Hi there! How can we help you?

Contact us using the form below or give us a call.

Send Us A Message:

I agree to be contacted by The Real Estate Firm via call, email, and text for real estate services. To opt out, you can reply 'stop' at any time or reply 'help' for assistance. You can also click the unsubscribe link in the emails. Consent is not a condition of purchase. Message and data rates may apply. Message frequency may vary. Privacy Policy.

Do not fill in this field:

This site is protected by reCAPTCHA and the Google Privacy Policy and Terms of Service apply.

Hi there! How can we help you?

Contact us using the form below or give us a call.

Send Us A Message:

Do not fill in this field:

This site is protected by reCAPTCHA and the Google Privacy Policy and Terms of Service apply.

Hi there! How can we help you?

Contact us using the form below or give us a call.

Send Us A Message:

Do not fill in this field:

This site is protected by reCAPTCHA and the Google Privacy Policy and Terms of Service apply.

Do not fill in this field:

This site is protected by reCAPTCHA and the Google Privacy Policy and Terms of Service apply.

Do not fill in this field:

This site is protected by reCAPTCHA and the Google Privacy Policy and Terms of Service apply.

Do not fill in this field:

This site is protected by reCAPTCHA and the Google Privacy Policy and Terms of Service apply.

$

Do not fill in this field:

This site is protected by reCAPTCHA and the Google Privacy Policy and Terms of Service apply.