Listed by Kathleen Christie of Crye-Leike REALTORS Oak Ridge
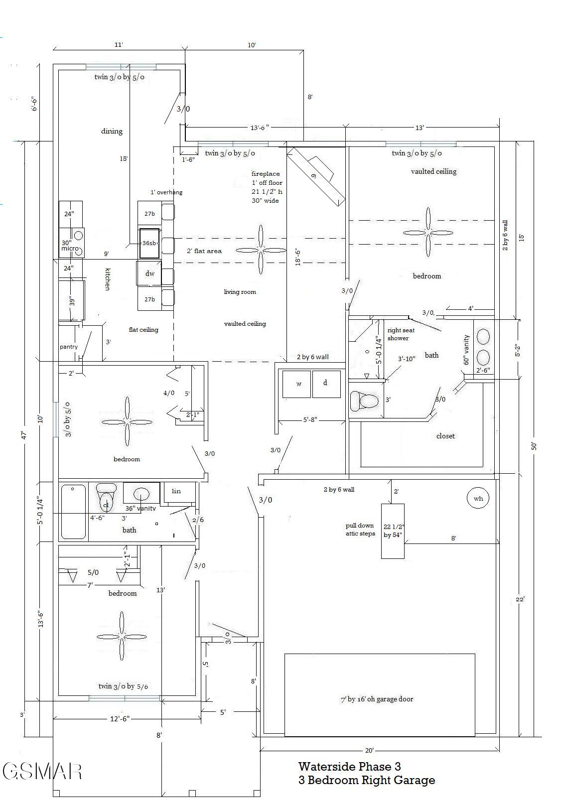
Welcome to Waterside Gardens Condominiums! It is time to begin customizing your brand-new, zero-maintenance home! Phase 4 construction is starting for these beautiful two- and three-bedroom condos located in the heart of Pigeon Forge on 47 serene acres along the Little Pigeon River, and minutes from the wonders Dollywood, Gatlinburg and the Smoky Mountains. This perimeter unit will maximize privacy, allowing you to enjoy easy living from your secluded back patio or covered front porch, while the HOA takes care of exteriors, lawns and landscaping. Featuring your choice of granite kitchen tops, soft-close cabinets, LVP flooring, living room and bedroom ceiling fans, stainless appliances, cathedral ceilings, elevated toilets and wide 36'' doors, this roomy two-bedroom condo sits in a peaceful community that allows no overnight rentals. Waterside Gardens will have a community pool by summer 2026, and 20 acres of green space with a walking trail and picnic tables for residents and their pets to enjoy. Waterside Gardens is being developed and constructed by the same team that built Riverbend Gardens and Creekside Gardens in Sevierville.

Listing Tools

Property Details of 540 Henderson Road, Unit 33

Map Location

 "Based on information submitted to Great Smoky Mountains MLS as of February 7, 2026 10:51 PM EST . All data is deemed reliable but is not guaranteed accurate by the MLS. All information should be independently reviewed and verified for accuracy. IDX information is provided exclusively for consumers’ personal, noncommercial use and may not be used for any purpose other than to identify prospective properties consumers may be interested in purchasing."

 
 

 

 

Hi there! How can we help you?

Contact us using the form below or give us a call.

Send Us A Message:

I agree to be contacted by The Real Estate Firm via call, email, and text for real estate services. To opt out, you can reply 'stop' at any time or reply 'help' for assistance. You can also click the unsubscribe link in the emails. Consent is not a condition of purchase. Message and data rates may apply. Message frequency may vary. Privacy Policy.

Do not fill in this field:

This site is protected by reCAPTCHA and the Google Privacy Policy and Terms of Service apply.

Hi there! How can we help you?

Contact us using the form below or give us a call.

Send Us A Message:

Do not fill in this field:

This site is protected by reCAPTCHA and the Google Privacy Policy and Terms of Service apply.

Hi there! How can we help you?

Contact us using the form below or give us a call.

Send Us A Message:

Do not fill in this field:

This site is protected by reCAPTCHA and the Google Privacy Policy and Terms of Service apply.

Do not fill in this field:

This site is protected by reCAPTCHA and the Google Privacy Policy and Terms of Service apply.

Do not fill in this field:

This site is protected by reCAPTCHA and the Google Privacy Policy and Terms of Service apply.

Do not fill in this field:

This site is protected by reCAPTCHA and the Google Privacy Policy and Terms of Service apply.

$

Do not fill in this field:

This site is protected by reCAPTCHA and the Google Privacy Policy and Terms of Service apply.