Listed by Janet Giffee-Ingram of eXp Realty,LLC 7720
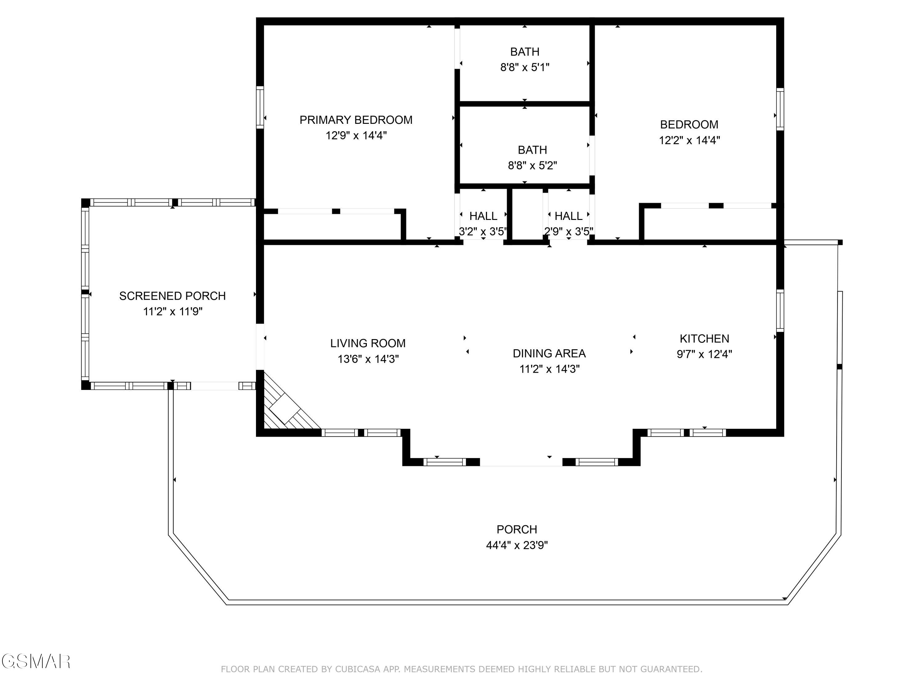
Modern 2020 Cabin | Prime Location Between Gatlinburg & Pigeon Forge | Turnkey Investment Opportunity Built in 2020, this modern mountain retreat offers the best of both worlds-newer construction with classic Smoky Mountain character. A convenient circular driveway provides easy access and ample parking for guests. Previously enjoyed as a private second home, the property has only recently joined a professional rental program, giving buyers an opportunity to maximize income potential in one of East Tennessee's most desirable locations. Ideally positioned just off The Spur, the cabin provides quick, year-round access to both Gatlinburg and Pigeon Forge, two of the region's strongest short-term rental markets. Inside, you'll find open-concept living spaces, rich wood finishes, and high ceilings that create a warm, inviting atmosphere. Outdoor living is equally impressive, featuring a sprawling 45x24 covered porch, a screened-in sunroom, and a private hot tub, all perfect for relaxing or entertaining in any season. Designed for today's vacationers, the cabin includes multiple bedrooms and spacious gathering areas, comfortably accommodating family and friends. With low county taxes, a prime location just 10 miles from the Great Smoky Mountains National Park, and strong rental growth potential, this property is a standout choice for investors and second-home buyers alike. Offered fully furnished and turnkey, this is a rare opportunity to own a newer cabin in the heart of the Smokies-ready for immediate enjoyment and revenue generation.

Listing Tools

Property Details of 2404 Bobs Pass

Map Location

 "Based on information submitted to Great Smoky Mountains MLS as of February 13, 2026 10:51 PM EST . All data is deemed reliable but is not guaranteed accurate by the MLS. All information should be independently reviewed and verified for accuracy. IDX information is provided exclusively for consumers’ personal, noncommercial use and may not be used for any purpose other than to identify prospective properties consumers may be interested in purchasing."

 
 

 

 

Hi there! How can we help you?

Contact us using the form below or give us a call.

Send Us A Message:

I agree to be contacted by The Real Estate Firm via call, email, and text for real estate services. To opt out, you can reply 'stop' at any time or reply 'help' for assistance. You can also click the unsubscribe link in the emails. Consent is not a condition of purchase. Message and data rates may apply. Message frequency may vary. Privacy Policy.

Do not fill in this field:

This site is protected by reCAPTCHA and the Google Privacy Policy and Terms of Service apply.

Hi there! How can we help you?

Contact us using the form below or give us a call.

Send Us A Message:

Do not fill in this field:

This site is protected by reCAPTCHA and the Google Privacy Policy and Terms of Service apply.

Hi there! How can we help you?

Contact us using the form below or give us a call.

Send Us A Message:

Do not fill in this field:

This site is protected by reCAPTCHA and the Google Privacy Policy and Terms of Service apply.

Do not fill in this field:

This site is protected by reCAPTCHA and the Google Privacy Policy and Terms of Service apply.

Do not fill in this field:

This site is protected by reCAPTCHA and the Google Privacy Policy and Terms of Service apply.

Do not fill in this field:

This site is protected by reCAPTCHA and the Google Privacy Policy and Terms of Service apply.

$

Do not fill in this field:

This site is protected by reCAPTCHA and the Google Privacy Policy and Terms of Service apply.