Listed by Mary Beth Getz of Smoky Mountain Real Estate Cor
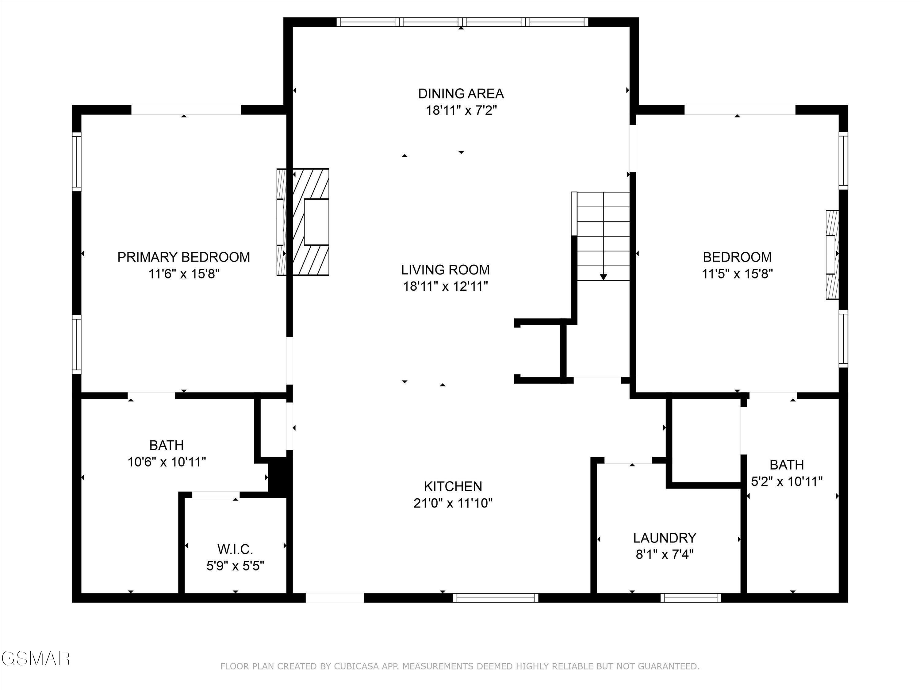
Just 2.2 miles from Downtown Gatlinburg, this luxury 3-bedroom, 3-bath cabin sits on a private 0.86-acre lot with breathtaking, panoramic mountain views from every level, where you can make out incredible geological details and even a unique waterfall unlike any other. A proven performer with 5-star rental status, this home is being sold fully furnished-including custom-built furniture, high-end finishes, hot tub, pool table, raised theater seating, and game systems-making it truly turnkey. Its versatile layout is perfect for short-term rentals, a second vacation home, or a primary residence. There is even more potential with the large unfinished basement that features souring ceiling and is ready to be finished for additional living space, maximizing both function and value. Enjoy peaceful surroundings, generous living space, and access to a community pool, all while being minutes from the vibrant heart of Gatlinburg. Don't miss this rare opportunity to own a high-end mountain retreat with income potential in one of Tennessee's most desirable destinations.

Listing Tools

Property Details of 933 E Foothills Drive

Map Location

 "Based on information submitted to Great Smoky Mountains MLS as of November 17, 2025 4:51 AM EST . All data is deemed reliable but is not guaranteed accurate by the MLS. All information should be independently reviewed and verified for accuracy. IDX information is provided exclusively for consumers’ personal, noncommercial use and may not be used for any purpose other than to identify prospective properties consumers may be interested in purchasing."

 
 

 

 

Hi there! How can we help you?

Contact us using the form below or give us a call.

Send Us A Message:

I agree to receive marketing and customer service calls and text messages from The Real Estate Firm. To opt out, you can reply 'stop' at any time or click the unsubscribe link in the emails. Consent is not a condition of purchase. Msg/data rates may apply. Msg frequency varies. Privacy Policy.

Do not fill in this field:

This site is protected by reCAPTCHA and the Google Privacy Policy and Terms of Service apply.

Hi there! How can we help you?

Contact us using the form below or give us a call.

Send Us A Message:

Do not fill in this field:

This site is protected by reCAPTCHA and the Google Privacy Policy and Terms of Service apply.

Hi there! How can we help you?

Contact us using the form below or give us a call.

Send Us A Message:

Do not fill in this field:

This site is protected by reCAPTCHA and the Google Privacy Policy and Terms of Service apply.

Do not fill in this field:

This site is protected by reCAPTCHA and the Google Privacy Policy and Terms of Service apply.

Do not fill in this field:

This site is protected by reCAPTCHA and the Google Privacy Policy and Terms of Service apply.

Do not fill in this field:

This site is protected by reCAPTCHA and the Google Privacy Policy and Terms of Service apply.

$

Do not fill in this field:

This site is protected by reCAPTCHA and the Google Privacy Policy and Terms of Service apply.