Listed by Kathleen Christie of Crye-Leike REALTORS Oak Ridge
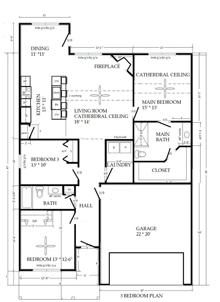
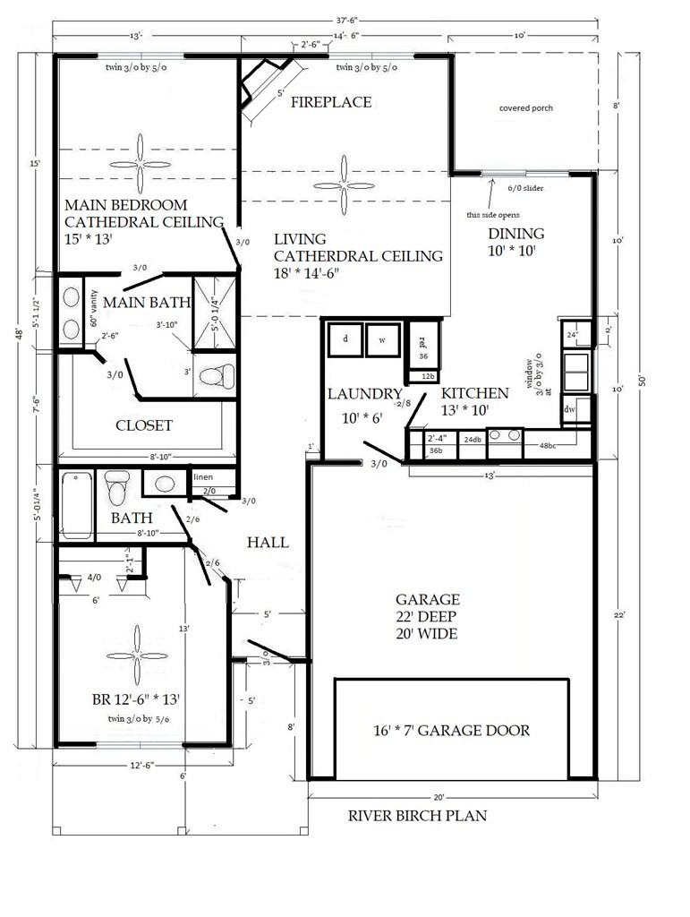
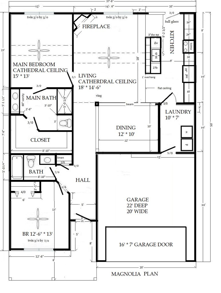
Welcome to Waterside Gardens Condominiums! Construction on this customizable unit is scheduled to begin in September and will be finished next spring. Backing to 20 acres of greenspace leading to the river, this is one of the few perimeter units that allows for expansion to a three-bedroom or covered porch. Located in the heart of Pigeon Forge on 47 beautiful acres along the Little Pigeon River, and minutes from the wonders Dollywood, Gatlinburg and the Smoky Mountains, this new construction development features all single-level, two-bedroom, two-car garage duplexes. The brick and stone exterior means you can enjoy zero maintenance living from your covered front porch or back patio. Best of all, you get to customize all interiors from a wide selection of granite kitchen tops, soft-close cabinets, LVP flooring, and any paint color you choose. We'll also customize the floor plan if you buy before groundbreaking. Each condo features a stunning stone fireplace, living room and bedroom ceiling fans, stainless appliances, cathedral ceilings, wide 36'' doors and the option of expanding the back patio or adding a sunroom or screened porch. Waterside Gardens features a community pool and 20 acres of green space with a walking trail and picnic tables for residents and their pets to enjoy. With only 16 units in this phase, these will sell quickly. Waterside Gardens is being developed and constructed by the same team that built Riverbend Gardens and Creekside Gardens in Sevierville.

Listing Tools

Property Details of 540 Henderson Road, Unit 12

Map Location

 "Based on information submitted to Great Smoky Mountains MLS as of November 18, 2025 7:21 AM EST . All data is deemed reliable but is not guaranteed accurate by the MLS. All information should be independently reviewed and verified for accuracy. IDX information is provided exclusively for consumers’ personal, noncommercial use and may not be used for any purpose other than to identify prospective properties consumers may be interested in purchasing."

 
 

 

 

Hi there! How can we help you?

Contact us using the form below or give us a call.

Send Us A Message:

I agree to receive marketing and customer service calls and text messages from The Real Estate Firm. To opt out, you can reply 'stop' at any time or click the unsubscribe link in the emails. Consent is not a condition of purchase. Msg/data rates may apply. Msg frequency varies. Privacy Policy.

Do not fill in this field:

This site is protected by reCAPTCHA and the Google Privacy Policy and Terms of Service apply.

Hi there! How can we help you?

Contact us using the form below or give us a call.

Send Us A Message:

Do not fill in this field:

This site is protected by reCAPTCHA and the Google Privacy Policy and Terms of Service apply.

Hi there! How can we help you?

Contact us using the form below or give us a call.

Send Us A Message:

Do not fill in this field:

This site is protected by reCAPTCHA and the Google Privacy Policy and Terms of Service apply.

Do not fill in this field:

This site is protected by reCAPTCHA and the Google Privacy Policy and Terms of Service apply.

Do not fill in this field:

This site is protected by reCAPTCHA and the Google Privacy Policy and Terms of Service apply.

Do not fill in this field:

This site is protected by reCAPTCHA and the Google Privacy Policy and Terms of Service apply.

$

Do not fill in this field:

This site is protected by reCAPTCHA and the Google Privacy Policy and Terms of Service apply.